Cable Car Lodge
Cable Car Lodge
Situated right on the lakeside of Taupō, this bach was planned for the lodgement of family and regular fishing trips. Hoogerbrug Architects were engaged to design this bach and a cable car system that could provide access up the site’s steep hillside. Desgined on a classic ‘H-Plan’ floor layout, this building was a constructed on a robust concrete slab and utilises underground geothermal energy for heating.
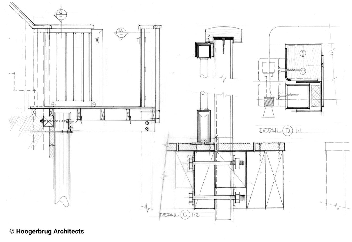
A cable car system suited the topography of the site and the client’s budget perfectly. This proprietary system had to be custom built and so construction details and measurements were sent to a supplier in Wellington to fabricate. With preparation of shopdrawings and checking on-site measurements, the build for this system and the whole bach was completed in 2015.
Type:
Cable Car Access
Where:
Hilltop, Taupō
Year:
2015
Client:
S Bignell
